Планирование кухни — дело непростое и весьма ответственное. Достаточно ошибиться на пару сантиметров — и вот уже шкафчик не влезает. Разместишь не там розетки — возникнут проблемы с подключением техники. Дизайнеры «German Studio» поделились правилами, соблюдая которые легко спланировать кухню своей мечты.
1. Проведение замера
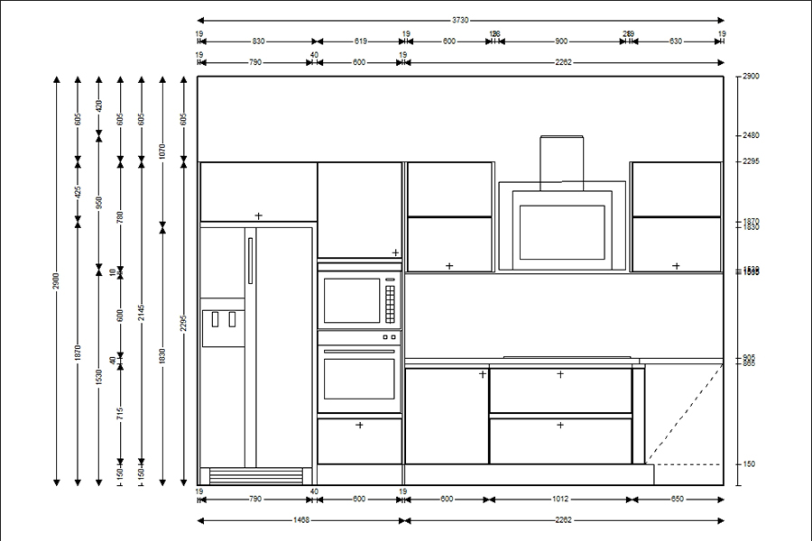
Начинать планирование кухни можно только после того, как будет готов четкий, понятный и точный до миллиметра замер комнаты, в которой будет располагаться кухонный гарнитур. При этом важно сначала спланировать кухню, а потом под готовый проект делать ремонт. Уже на этом этапе необходимо точно знать, где будут расположены все коммуникации, а также вывод под вытяжку, силовая розетка под варочную панель и другие розетки.
После того, как будут завершены все черновые работы, готовы стены и пол, проведены все коммуникации, нужно сделать повторный замер кухни, сравнить его с результатами первого и при необходимости внести изменения в проект или скорректировать строительные работы. Важно сделать это именно сейчас, потому что потом любые, даже самые небольшие изменения приведут к дополнительным расходам. Если гарнитур не уместится, поменять только один нижний шкаф не получится — придется заказывать и столешницу, и верхнюю секцию другого размера. Чтобы такого гарантированно не произошло, доверьте проведение замера профессионалам. В «German Studio», эта услуга предоставляется бесплатно и проводится специалистами.
   
2. Расстановка техники
Планирование кухни начинается с расположения крупной бытовой техники. Ее размеры, за редким исключением, стандартные, поэтому ориентируемся от них. Определись, где будут стоять холодильник, духовой шкаф, варочная панель, посудомоечная машина и, конечно, мойка. Если есть отдельная морозильная камера или винный шкаф, не забудь отразить это в проекте.
3. Кухня под себя
При планировании кухни нужно учитывать привычки и образ жизни тех, кто живет в этом доме. Если мало готовишь на плите, предпочитаешь запекать блюда в духовке — ограничься двухконфорочной варочной панелью и закажи к ней в пару функциональный духовой шкаф. Часто жаришь на масле рыбу или мясо — запланируй практичный фартук, который легко моется, и оставь свободной зону вокруг плиты, чтобы масло не забрызгало поверхности.
Очень важен рост людей. Элементы мебели рассчитаны на человека ростом 165−175 см. Если ты ниже или выше, планируй высоту шкафов под себя. Тогда спина не будет болеть от неудобного положения во время готовки и хлопоты на кухне будут в радость. За дизайн-проектом кухни, который будет учитывать все возможные индивидуальные пожелания заказчиков, можно обратиться и к профессиональным дизайнерам. В «German Studio» тебе помогут с этим бесплатно. Можно даже заказать проект онлайн.
   
4. Рабочий треугольник
Многие слышали о правиле рабочего треугольника, на котором держится все планирование кухонного гарнитура. Суть его проста: основные зоны нужно располагать так, чтобы хозяйка могла быстро достичь цели. Достала продукты, помыла, порезала — готовь! Холодильник, мойка и плита должны быть на расстоянии одного-двух шагов друг от друга. Если соблюдать это правило, можно существенно сократить количество километров, которые мы «наматываем» в течение дня, занимаясь готовкой.
   
5. Организация хранения
Раздели всю кухонную утварь на две категории. Предметы ежедневного пользования: тарелки, чашки, кастрюли. Они всегда должны быть под рукой, поэтому их лучше всего размещать в зоне рабочего треугольника. Предметы редкого пользования, например, можно хранить в дальнем углу кухни. Антресольные шкафы подойдут идеально.
   
6. Выдвижные ящики VS распашные дверцы
Ящики стоят дороже, но они удобнее распашных шкафов. Особенно если оснащены механизмами полного выдвижения, как в кухнях «German Studio». Открываешь — и видишь сразу все, что находится внутри. Доводчики обеспечивают плавное, бесшумное закрывание шкафчиков.
7. Безопасность превыше всего!
Синяки, шишки, порезы появляются из-за неправильной планировки кухни. Вот почему эргономичность пространства должна быть продумана самым тщательным образом. Продумай также грамотное освещение рабочей поверхности, чтобы не готовить впотьмах.
8. Легкость в уходе
Для многих людей готовка — это приятные хлопоты. А вот часы, проведенные с тряпкой и агрессивной бытовой химией — «убийцей» здоровья, вряд ли могут принести кому-нибудь удовольствие. Поэтому при выборе мебели отдай предпочтение практичным и легко моющимся материалам, а также расцветкам, на которых не будут заметны пятна, отпечатки пальцев, разводы или царапины. Разобраться во всем разнообразии материалов и декоров самостоятельно непросто, лучше обратиться к специалистам. Дизайнеры «German Studio» всегда помогут подобрать подходящий именно тебе вариант.
9. Такие незаметные, но важные… ручки
Не обдели вниманием ручки шкафов. Фасады без ручек сейчас очень популярное решение. Да и мыть их гораздо удобнее. А еще учти, что фасады шкафов, которые открываются наверх, при неграмотном планировании могут повредить потолок.